
여러분 안녕하세요 :)
오늘은, 2025년 2차 장기미임대 매입임대주택 14번째 집인, 양천구 목동그레이스빌을 안내드립니다 :)
참고로, 일정이 언제였지? 싶으신 분들은 아래 일정을 확인 부탁드려요!
- 주택 공개 2025.09.15.(월) ~ 09.19.(금) 현장 방문 가능
- 신청 접수 2025.09.23.(화) ~ 09.26.(금) 인터넷·우편
오늘 살펴볼 매입임대주택은, "목동그레이스빌"입니다.
먼저, 대략적인 위치 보시고 가실게요 (목동 764-2)!
주변에 학교들은 많으나, 목동역에서1.5km 정도 떨어져 있는 점 참고 부탁드립니다 😊

네이버 지도
서울특별시 양천구 목동중앙로3길 13
map.naver.com
🏠 2025년 2차 장기미임대 매입임대 주택 입주자 모집 공고 (2025.08.28.) 주택목록 (일부 발췌)

📸사진
* 서울주택정보 에서 제공된 사진을 첨부하였습니다.
서울주택정보
닫기 아파트 등,지역,지하철,학교,모집공고 검색 필터 주거안심종합센터 아파트 등,지역,지하철,학교,모집공고 검색 필터 사이버모델하우스 SH주택통계 아파트 자산현황 다가구 자산현황 원룸
www.i-sh.co.kr




💡4층 평면도에서 이번에 나온 집 중 하나 403호 (약 27m2) 구조를 보면, 직사각형 형태의 긴 원룸 구조입니다.

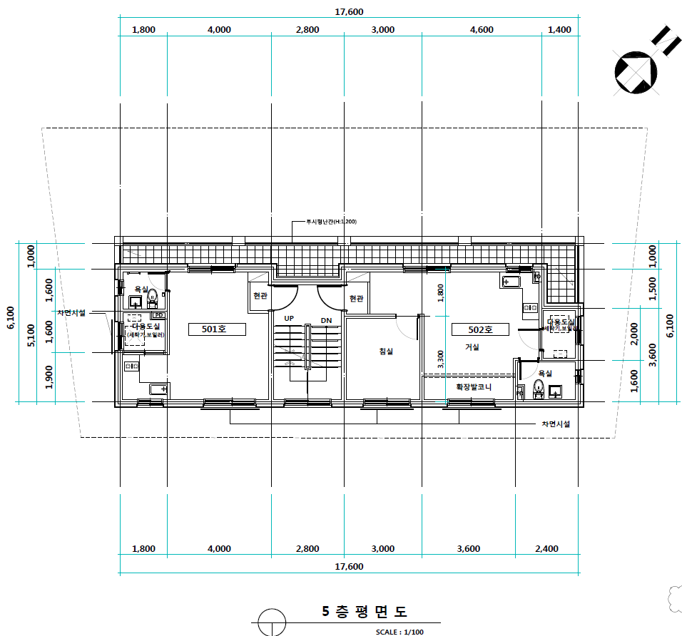
💡다음은 501호 인데요, 보시는 것처럼 욕실, 다용도실과 나란히 직각형태의 작은 주방이 쏙 들어가있네요!
신기한 구조인데, 칸막이나 커튼 설치하면 공간 분리도 확실히 될 것 같아보입니다 :)
💡주요 특징

- 준공일: 2018. 01. 05 💡이번에 나온 집들 중에서는 연식이 있는 편이네요!
- 층수: 5층
- 세대수: 13호
- 엘리베이터 유무: 미설치
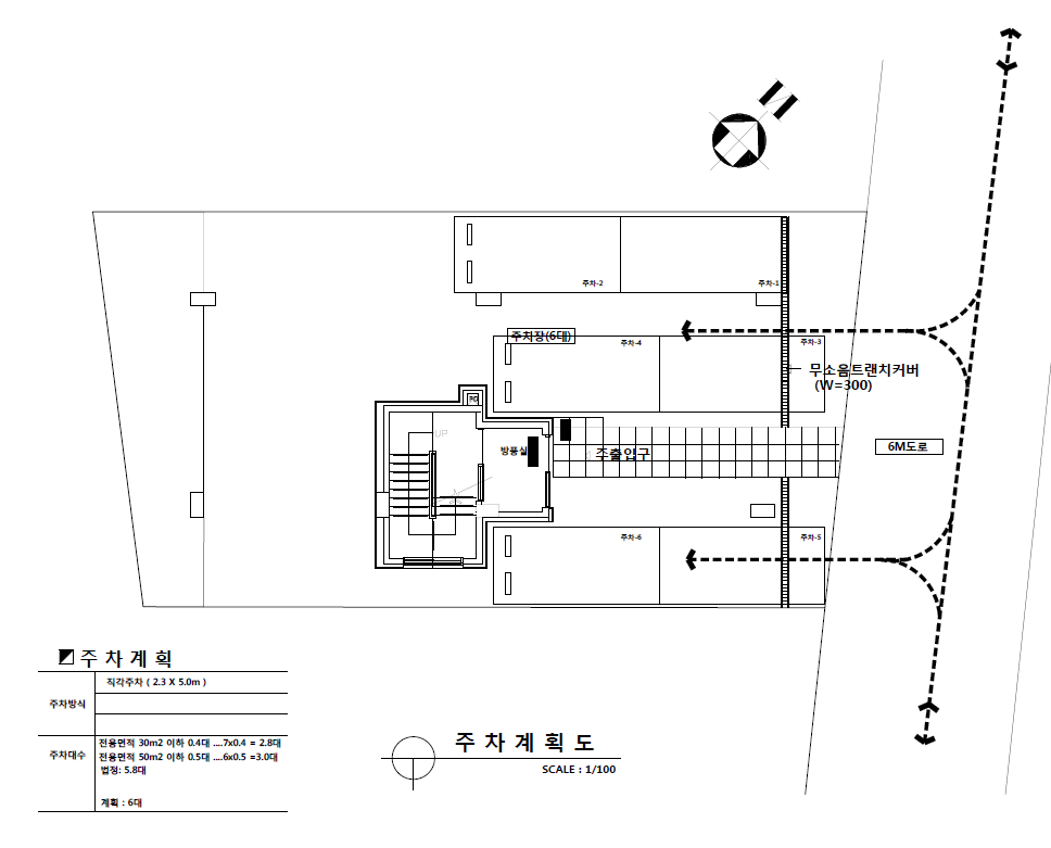
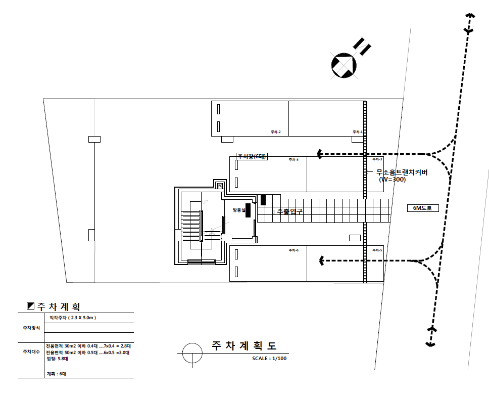
- 기계식 주차장은 없으나, 1층에 주차 공간이 있습니다. 6대 가능하네요! :)
- 목동역에서 1.5km 떨어진 곳에 위치하고 있습니다.
공급 호수는 403호, 501호 2개인데요, 두 집 모두 원룸 형태이고 각각 직사각형, 정사각형 형태였습니다.
다만, 위에 나온 정보처럼 엘리베이터가 없어서 4-5층까지 매번 걸어서 이동해야 하니, 이 점 신중하게 살펴보시는 것이 좋을 것 같습니다.
오늘도 긴 글 읽어주셔서 감사합니다 🫡
곧 다음 주택으로 돌아올게요!
'복지정보 > 2025 장기미임대 매입임대주택' 카테고리의 다른 글
| 🏠 2025년 2차 장기미임대 매입임대주택 - (16)케이엠캐슬타운 알아보기! (0) | 2025.09.09 |
|---|---|
| 🏠 2025년 2차 장기미임대 매입임대주택 - (15)서도휴파크 알아보기! (0) | 2025.09.09 |
| 🏠 2025년 2차 장기미임대 매입임대주택 - (13)미래하이츠 알아보기! (0) | 2025.09.07 |
| 🏠 2025년 2차 장기미임대 매입임대주택 - (12)어반하우징 알아보기! (사진포함) (0) | 2025.09.07 |
| 🏠 2025년 2차 장기미임대 매입임대주택 - (11)서도휴빌 102동 알아보기! (사진포함) (0) | 2025.09.07 |