
여러분 안녕하세요 :)
오늘은, 2025년 2차 장기미임대 매입임대주택 16번째 집인, 금천구 케이엠캐슬타운을 안내드립니다 :)
참고로, 일정이 언제였지? 싶으신 분들은 아래 일정을 확인 부탁드려요!
- 주택 공개 2025.09.15.(월) ~ 09.19.(금) 현장 방문 가능
- 신청 접수 2025.09.23.(화) ~ 09.26.(금) 인터넷·우편
오늘 살펴볼 매입임대주택은, "케이엠캐슬타운"입니다.
먼저, 대략적인 위치 보시고 가실게요 ( 서울 금천구 독산동 895-25 )!

네이버 지도
케이엠캐슬타운
map.naver.com
💡위 지도에서 보실 수 있는 것처럼 역과는 꽤 거리가 있고,

위처럼 바로 건너편에는 어린이 공원이 있네요 ☺️
🏠 2025년 2차 장기미임대 매입임대 주택 입주자 모집 공고 (2025.08.28.) 주택목록 (일부 발췌)

총 4호가 나왔고, 면적이 넓은 편인지라 기본 셋팅된 임대보증금과 월임대료는 상당히 높은 편입니다.
그래도 상호전환(전세형)으로 바꾸게 되면 이만한 조건 못찾을 것 같아요!
📸사진
* 서울주택정보 에서 제공된 사진을 첨부하였습니다.





💡채광이 훌륭하고, 인테리어가 상당히 깔끔하게 나왔네요!

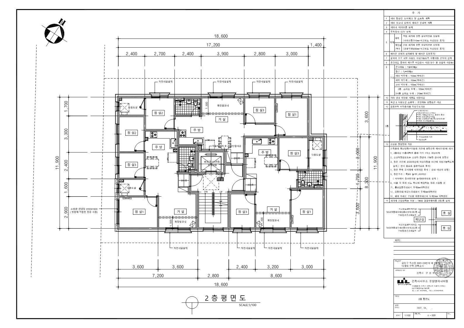
💡이번에 나온 4가지 매물 중 3곳이 2층에 위치하고 있습니다.
모두 3룸 형태이고, 아쉽게도 정확히 어떤 호수가 어떤 구조를 갖고 있는지 현재 평면도에서는 확인이 어렵습니다.
다만 모두 발코니를 확장했고, 2-3명이서 지내기 딱 좋은 구조 같습니다 :)

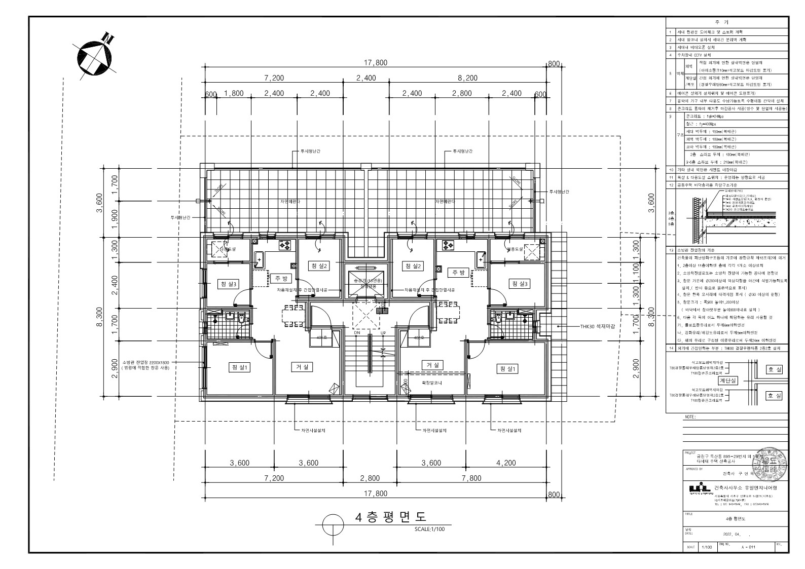
💡다음으로 4층 평면도입니다. 혹시 제 눈에만 베란다.... 가 보이나요 여러분...!?
침실 및 주방쪽에서 베란다로 이동이 가능해보이는데요, 한번 방문해서 어떻게 생겼는 지 꼭 보고 싶네요 🤔
베란다까지 있다면 신혼부부, 아이들 키우시는 부모님들께서는 많이 기대되실 것 같습니다.
아래 링크는 실제로 주택열람기간에 다른 분이 다녀오신 정성스러운 블로그 후기이더라구요! (502호)
관심이 있으신 분들께는 도움이 될 것 같아서 같이 올려봅니다 ☺️
sh 신혼신생아 매입임대2 주택열람, 독산동 .. : 네이버블로그
sh 신혼신생아 매입임대2 주택열람, 독산동 케이엠캐슬타운 사전방문
sh청약센터 신혼신생아 매입임대2 주택열람기간 중에 케이엠캐슬타운 다녀옴! 25년 2월 첫 주에 다녀온 사...
blog.naver.com
💡주요 특징

- 준공일: 2022. 03. 29 (약 3년)
- 층수: 5층
- 세대수: 10호
- 엘리베이터 유무: 설치
- 기계식 주차장은 없으나, 1층에 주차 공간이 있습니다. 8대 가능하네요! :)
- 구로디지털단지역에서 1.3km 떨어진 위치에 위치하고 있습니다.
공급 호수는 201~3, 402호 총 4개인데요, 모두 3룸이고, 특히 402호는 베란다? 발코니?가 평면도상 존재해보였습니다.
오늘도 긴 글 읽어주셔서 감사합니다.
곧 다음 주택으로 돌아올게요!
'복지정보 > 2025 장기미임대 매입임대주택' 카테고리의 다른 글
| 🏠 2025년 2차 장기미임대 매입임대주택 - (18)엘아르베뉴 1동 알아보기! (0) | 2025.09.15 |
|---|---|
| 🏠 2025년 2차 장기미임대 매입임대주택 - (17)어스빌리지 알아보기! (0) | 2025.09.15 |
| 🏠 2025년 2차 장기미임대 매입임대주택 - (15)서도휴파크 알아보기! (0) | 2025.09.09 |
| 🏠 2025년 2차 장기미임대 매입임대주택 - (14)목동그레이스빌 알아보기! (0) | 2025.09.09 |
| 🏠 2025년 2차 장기미임대 매입임대주택 - (13)미래하이츠 알아보기! (0) | 2025.09.07 |