본문 바로가기
복지정보/2025 장기미임대 매입임대주택

🏠 2025년 2차 장기미임대 매입임대주택 - (11)서도휴빌 102동 알아보기! (사진포함)

by SociCare 2025. 9. 7.
반응형

 

여러분 안녕하세요 :)

 

오늘은, 2025년 2차 장기미임대 매입임대주택 11번째 집인, 강동구 서도휴빌 102동을 안내드립니다 :)

참고로, 일정이 언제였지? 싶으신 분들은 아래 일정을 확인 부탁드려요! 

  • 주택 공개 2025.09.15.(월) ~ 09.19.(금) 현장 방문 가능
  • 신청 접수 2025.09.23.(화) ~ 09.26.(금) 인터넷·우편

오늘 살펴볼 매입임대주택은, "서도휴빌 102동"입니다. 

먼저, 대략적인 위치 보시고 가실게요 (성내동 440-5)!

 

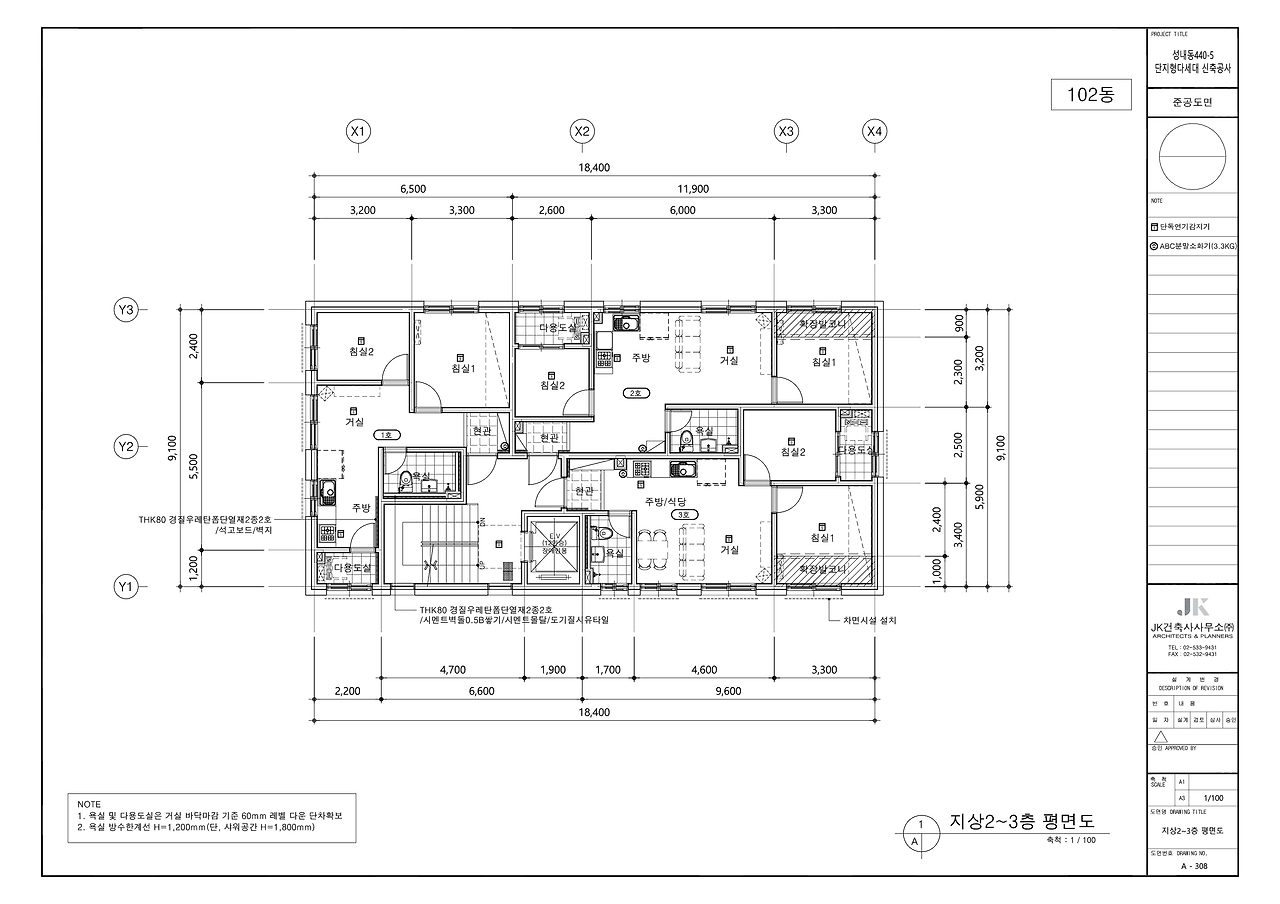
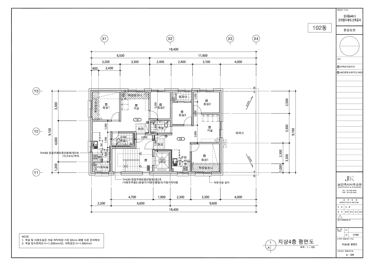
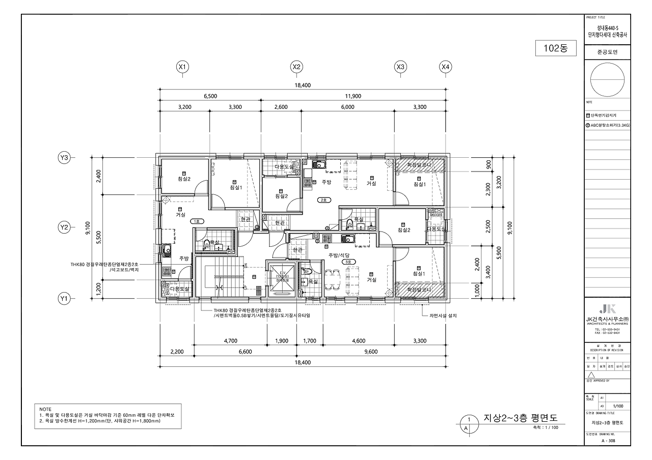
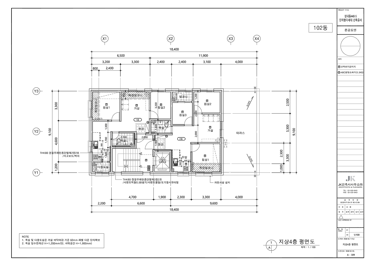
🏠 2025년 2차 장기미임대 매입임대 주택 입주자 모집 공고 (2025.08.28.) 주택목록 (일부 발췌)

 

📸사진 

* 서울주택정보 에서 제공된 사진을 첨부하였습니다.

 

서울주택정보

닫기 아파트 등,지역,지하철,학교,모집공고 검색 필터 주거안심종합센터 아파트 등,지역,지하철,학교,모집공고 검색 필터 사이버모델하우스 SH주택통계 아파트 자산현황 다가구 자산현황 원룸

www.i-sh.co.kr

홈페이지에서 제공하고 있는 사진은 외관과 평면도 뿐이네요...!

네이버 검색 시 아래와 같이 카페에 서도휴빌로 보이는 참고할 수 있는 링크를 가져와봤습니다 :) 참고해 주세요 ^^

 

SH신매임 1 강동-서도휴빌 집공개:) : 네이버 카페

 

SH신매임 1 강동-서도휴빌 집공개:)

대한민국 모임의 시작, 네이버 카페

cafe.naver.com

 

💡주요 특징

- 준공일: 2020. 02. 07

- 층수: 5층

- 세대수: 10호

- 엘리베이터 유무: 설치

- 기계식 주차장은 없으나, 1층에 주차 공간이 있습니다. 8대 가능하네요! :)

- 둔촌동역에서 600m 이내에 위치하고 있습니다.

 

공급 호수는 201, 401호 2개인데요, 평면도상 투룸이고 4층인 401호가 살짝 더 넓은 형태이며

한층에 2세대가 있는 빌라인 듯 합니다. 신혼부부가 써도 좋아보이고, 개인이 살면 넉넉한 구조네요! :)

 

오늘도 긴 글 읽어주셔서 감사합니다. 

곧 다음 주택으로 돌아올게요!

 
반응형