반응형

여러분 안녕하세요 :)
오늘은, 2025년 2차 장기미임대 매입임대주택 13번째 집인, 구로구 미래하이츠를 안내드립니다 :)
참고로, 일정이 언제였지? 싶으신 분들은 아래 일정을 확인 부탁드려요!
- 주택 공개 2025.09.15.(월) ~ 09.19.(금) 현장 방문 가능
- 신청 접수 2025.09.23.(화) ~ 09.26.(금) 인터넷·우편
오늘 살펴볼 매입임대주택은, "미래하이츠"입니다.
먼저, 대략적인 위치 보시고 가실게요 (고척동 62-20)!

🏠 2025년 2차 장기미임대 매입임대 주택 입주자 모집 공고 (2025.08.28.) 주택목록 (일부 발췌)

📸사진
* 서울주택정보 에서 제공된 사진을 첨부하였습니다.
서울주택정보
닫기 아파트 등,지역,지하철,학교,모집공고 검색 필터 주거안심종합센터 아파트 등,지역,지하철,학교,모집공고 검색 필터 사이버모델하우스 SH주택통계 아파트 자산현황 다가구 자산현황 원룸
www.i-sh.co.kr





💡주요 특징

- 준공일: 2021. 08. 31
- 층수: 5층
- 세대수: 20호
- 엘리베이터 유무: 설치
- 기계식 주차장은 없으나, 1층에 주차 공간이 있습니다. 16대 가능하네요! :)
- 구일역에서 1km 이내에 위치하고 있습니다.
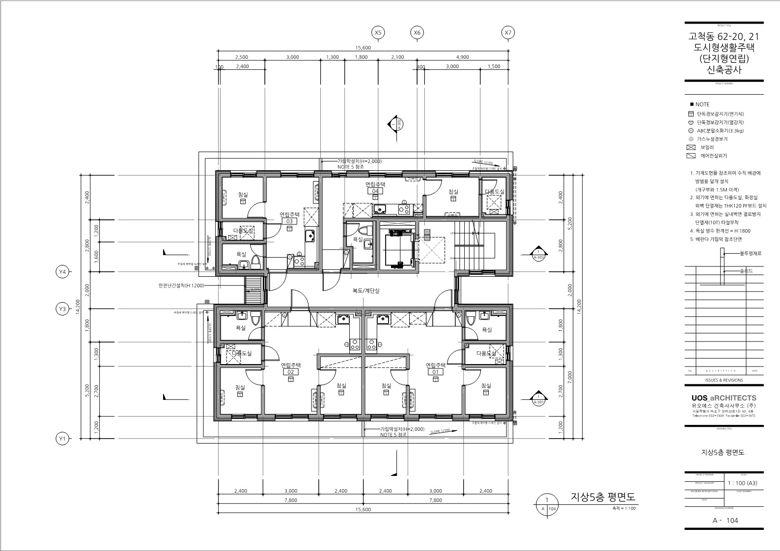
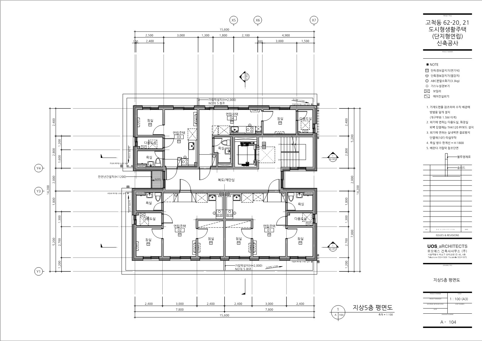
공급 호수는 304, 504호 2개인데요, 평면도상 두 집 모두 1.5룸 형태로 방이 1개 있고, 거실로 이루어진 구조입니다 :)
다만, 504호의 경우 ㄱ자형태로 된 재밌는 구조네요! 이 점 참고 부탁드리겠습니다 ☺️
오늘도 긴 글 읽어주셔서 감사합니다.
곧 다음 주택으로 돌아올게요!
반응형
'복지정보 > 2025 장기미임대 매입임대주택' 카테고리의 다른 글
| 🏠 2025년 2차 장기미임대 매입임대주택 - (15)서도휴파크 알아보기! (0) | 2025.09.09 |
|---|---|
| 🏠 2025년 2차 장기미임대 매입임대주택 - (14)목동그레이스빌 알아보기! (0) | 2025.09.09 |
| 🏠 2025년 2차 장기미임대 매입임대주택 - (12)어반하우징 알아보기! (사진포함) (0) | 2025.09.07 |
| 🏠 2025년 2차 장기미임대 매입임대주택 - (11)서도휴빌 102동 알아보기! (사진포함) (0) | 2025.09.07 |
| 🏠 2025년 2차 장기미임대 매입임대주택 - (10)다이얼로그663 알아보기! (사진포함) (0) | 2025.09.07 |