반응형

여러분 안녕하세요 :)
오늘은, 2025년 2차 장기미임대 매입임대주택 12번째 집인, 광진구 어반하우징을 안내드립니다 :)
참고로, 일정이 언제였지? 싶으신 분들은 아래 일정을 확인 부탁드려요!
- 주택 공개 2025.09.15.(월) ~ 09.19.(금) 현장 방문 가능
- 신청 접수 2025.09.23.(화) ~ 09.26.(금) 인터넷·우편
오늘 살펴볼 매입임대주택은, "어반하우징"입니다.
먼저, 대략적인 위치 보시고 가실게요 (중곡동 160-4)!

🏠 2025년 2차 장기미임대 매입임대 주택 입주자 모집 공고 (2025.08.28.) 주택목록 (일부 발췌)

📸사진
* 서울주택정보 에서 제공된 사진을 첨부하였습니다.
서울주택정보
닫기 아파트 등,지역,지하철,학교,모집공고 검색 필터 주거안심종합센터 아파트 등,지역,지하철,학교,모집공고 검색 필터 사이버모델하우스 SH주택통계 아파트 자산현황 다가구 자산현황 원룸
www.i-sh.co.kr









💡주요 특징

- 준공일: 2021. 03. 23
- 층수: 5층
- 세대수: 18호
- 엘리베이터 유무: 미설치
- 기계식 주차장은 없으나, 1층에 주차 공간이 있습니다. 8대 가능하네요! :)
- 군자역에서 약 300m 거리에 위치하고 있습니다.
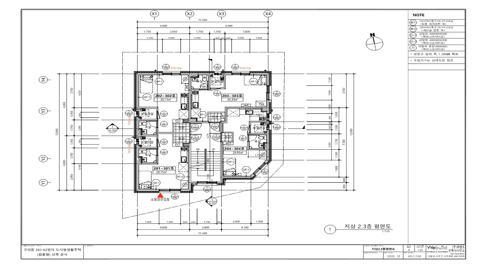
공급 호수는 204, 301, 303호 3개인데요,
301/303호의 경우 일반 원룸 구조와 비슷하고,
204호의 경우 공간 가운데에 욕실 및 보일러실이 있는 특이한 구조네요! 🤔
직접 가보지는 못했지만 공간을 분리해주는 기능을 할 수도 있겠다 싶은 생각이 들었습니다.
오늘도 긴 글 읽어주셔서 감사합니다.
곧 다음 주택으로 돌아올게요!
반응형
'복지정보 > 2025 장기미임대 매입임대주택' 카테고리의 다른 글
| 🏠 2025년 2차 장기미임대 매입임대주택 - (14)목동그레이스빌 알아보기! (0) | 2025.09.09 |
|---|---|
| 🏠 2025년 2차 장기미임대 매입임대주택 - (13)미래하이츠 알아보기! (0) | 2025.09.07 |
| 🏠 2025년 2차 장기미임대 매입임대주택 - (11)서도휴빌 102동 알아보기! (사진포함) (0) | 2025.09.07 |
| 🏠 2025년 2차 장기미임대 매입임대주택 - (10)다이얼로그663 알아보기! (사진포함) (0) | 2025.09.07 |
| 🏠 2025년 2차 장기미임대 매입임대주택 - (9)다원하이빌 알아보기! (사진포함) (0) | 2025.09.06 |