반응형

여러분 안녕하세요 :)
오늘은, 2025년 2차 장기미임대 매입임대주택 9번째 집인, 서초구 다원 하이빌을 안내드립니다 :)
참고로, 일정이 언제였지? 싶으신 분들은 아래 일정을 확인 부탁드려요!
- 주택 공개 2025.09.15.(월) ~ 09.19.(금) 현장 방문 가능
- 신청 접수 2025.09.23.(화) ~ 09.26.(금) 인터넷·우편
오늘 살펴볼 매입임대주택은, "다원하이빌"입니다.
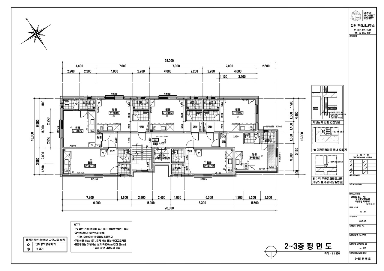
먼저, 대략적인 위치 보시고 가실게요 (방배동 467-7,8)!

🏠 2025년 2차 장기미임대 매입임대 주택 입주자 모집 공고 (2025.08.28.) 주택목록 (일부 발췌)

📸사진
* 서울주택정보 에서 제공된 사진을 첨부하였습니다.



💡주요 특징

- 준공일: 2021. 04. 29
- 층수: 5층
- 세대수: 19호
- 엘리베이터 유무: 설치
- 기계식 주차장은 없으나, 1층에 주차 공간이 있습니다. 8대 가능하네요! :)
- 사당역에서 500m 이내에 위치하고 있습니다.
공급 호수는 203, 302호 2개인데요, 평면도상 발코니가 별도로 존재하는 것 같아 보여요! 원룸 치고는 넓어보입니다.
오늘도 긴 글 읽어주셔서 감사합니다.
곧 다음 주택으로 돌아올게요!
반응형
'복지정보 > 2025 장기미임대 매입임대주택' 카테고리의 다른 글
| 🏠 2025년 2차 장기미임대 매입임대주택 - (11)서도휴빌 102동 알아보기! (사진포함) (0) | 2025.09.07 |
|---|---|
| 🏠 2025년 2차 장기미임대 매입임대주택 - (10)다이얼로그663 알아보기! (사진포함) (0) | 2025.09.07 |
| 🏠 2025년 2차 장기미임대 매입임대주택 - (8)한별 알아보기! (사진포함) (0) | 2025.09.06 |
| 🏠 2025년 2차 장기미임대 매입임대주택 - (7)광채빌라 알아보기! (사진포함) (0) | 2025.09.06 |
| 🏠 2025년 2차 장기미임대 매입임대주택 - (6)더존에이스빌 알아보기! (사진포함) (0) | 2025.09.06 |