
여러분 안녕하세요 :)
오늘은, 2025년 2차 장기미임대 매입임대주택 20번째 집인, 금천구 이스타파크 제1동을 안내드립니다 :)
참고로, 일정이 언제였지? 싶으신 분들은 아래 일정을 확인 부탁드려요!
- 주택 공개 2025.09.15.(월) ~ 09.19.(금) 현장 방문 가능
- 신청 접수 2025.09.23.(화) ~ 09.26.(금) 인터넷·우편
오늘 살펴볼 매입임대주택은, "이스타파크 제1동"입니다.
먼저, 대략적인 위치 보시고 가실게요 (시흥동 984-54)!
네이버 지도
서울특별시 금천구 시흥동 984-54
map.naver.com

🏠 2025년 2차 장기미임대 매입임대 주택 입주자 모집 공고 (2025.08.28.) 주택목록 (일부 발췌)

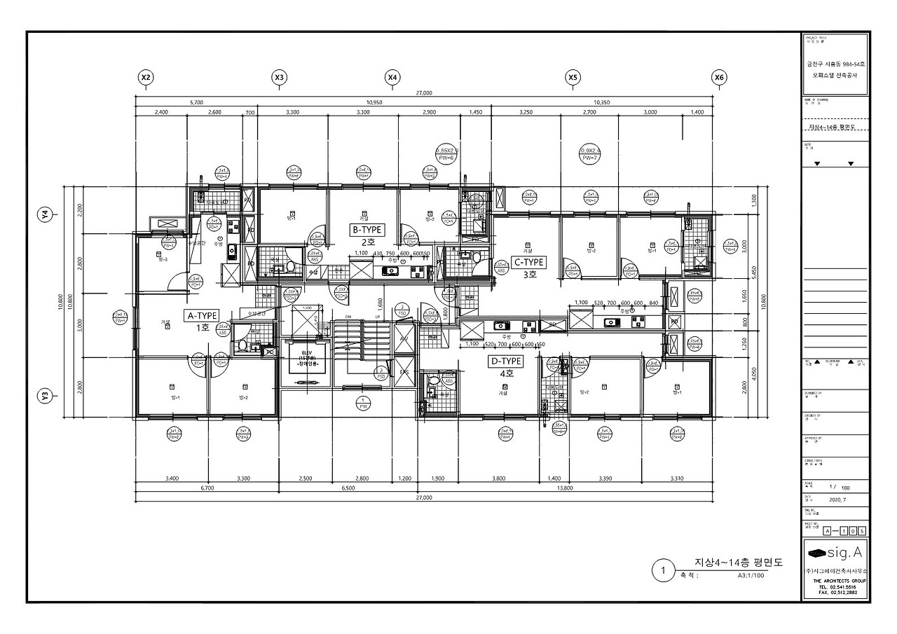
💡전용면적은 39.68 부터 51.54까지 다양하게 나왔습니다 :) 이번에 공급된 호수는 총 4개 호수네요!
📸사진
* 서울주택정보 에서 제공된 사진을 첨부하였습니다.
서울주택정보
닫기 아파트 등,지역,지하철,학교,모집공고 검색 필터 주거안심종합센터 아파트 등,지역,지하철,학교,모집공고 검색 필터 사이버모델하우스 SH주택통계 아파트 자산현황 다가구 자산현황 원룸
www.i-sh.co.kr







- 504호: 51.54m^2, D-Type, 방이 총 2개 거실이 널찍한 가로로 긴 형태의 구조입니다.
- 702/1302호: 39.68m^2, B-Type, 2개의 방 사이에 거실이 위치해있는 구조입니다. 평면도상 욕실이 2개네요!
- 1403호: 50.9m^2, C-Type, D-Type과 마주보고 있는 구조이고 약간의 차이만 있네요! 방이 2개가 나란히 있고, 거실이 가장 끝에 있는 구조입니다.
💡주요 특징

- 준공일: 2022. 04. 05 (약 3년)
- 층수: 14층
- 세대수: 52호
- 엘리베이터 유무: 설치
- 기계식 주차 및 자주식 주차 포함 총 42대 가능하네요! :)
- 석수역에서 1.2km 떨어진 위치에 위치하고 있습니다.
오늘도 긴 글 읽어주셔서 감사합니다.
곧 다음 주택으로 돌아올게요!
'복지정보 > 2025 장기미임대 매입임대주택' 카테고리의 다른 글
| 🏠 2025년 2차 장기미임대 매입임대주택 - (21)독산헤리츠타워 알아보기! (0) | 2025.09.23 |
|---|---|
| 🏠 2025년 2차 장기미임대 매입임대주택 - (19)계림웨스트벨리 알아보기! (0) | 2025.09.15 |
| 🏠 2025년 2차 장기미임대 매입임대주택 - (18)엘아르베뉴 1동 알아보기! (0) | 2025.09.15 |
| 🏠 2025년 2차 장기미임대 매입임대주택 - (17)어스빌리지 알아보기! (0) | 2025.09.15 |
| 🏠 2025년 2차 장기미임대 매입임대주택 - (16)케이엠캐슬타운 알아보기! (0) | 2025.09.09 |