
여러분 안녕하세요 :)
오늘은, 2025년 2차 장기미임대 매입임대주택 19번째 집인, 금천구 계림웨스트벨리를 안내드립니다 :)
참고로, 일정이 언제였지? 싶으신 분들은 아래 일정을 확인 부탁드려요!
- 주택 공개 2025.09.15.(월) ~ 09.19.(금) 현장 방문 가능
- 신청 접수 2025.09.23.(화) ~ 09.26.(금) 인터넷·우편
오늘 살펴볼 매입임대주택은, "계림웨스트벨리"입니다.
먼저, 대략적인 위치 보시고 가실게요 (독산동 678-11)!

네이버 지도
계림웨스트벨리
map.naver.com
🏠 2025년 2차 장기미임대 매입임대 주택 입주자 모집 공고 (2025.08.28.) 주택목록 (일부 발췌)

💡 지도에서 보실 수 있는 것처럼 독산역 초역세권이고, 전용면적이 약 49 m^2로 넓게 나왔다보니 기본 임대보증금 및 월임대료는 높은 편이네요! 전세형으로 상호전환 시에는 월임대료를 20만원 아래로 할 수 있는 점 참고 부탁드려요 ^^
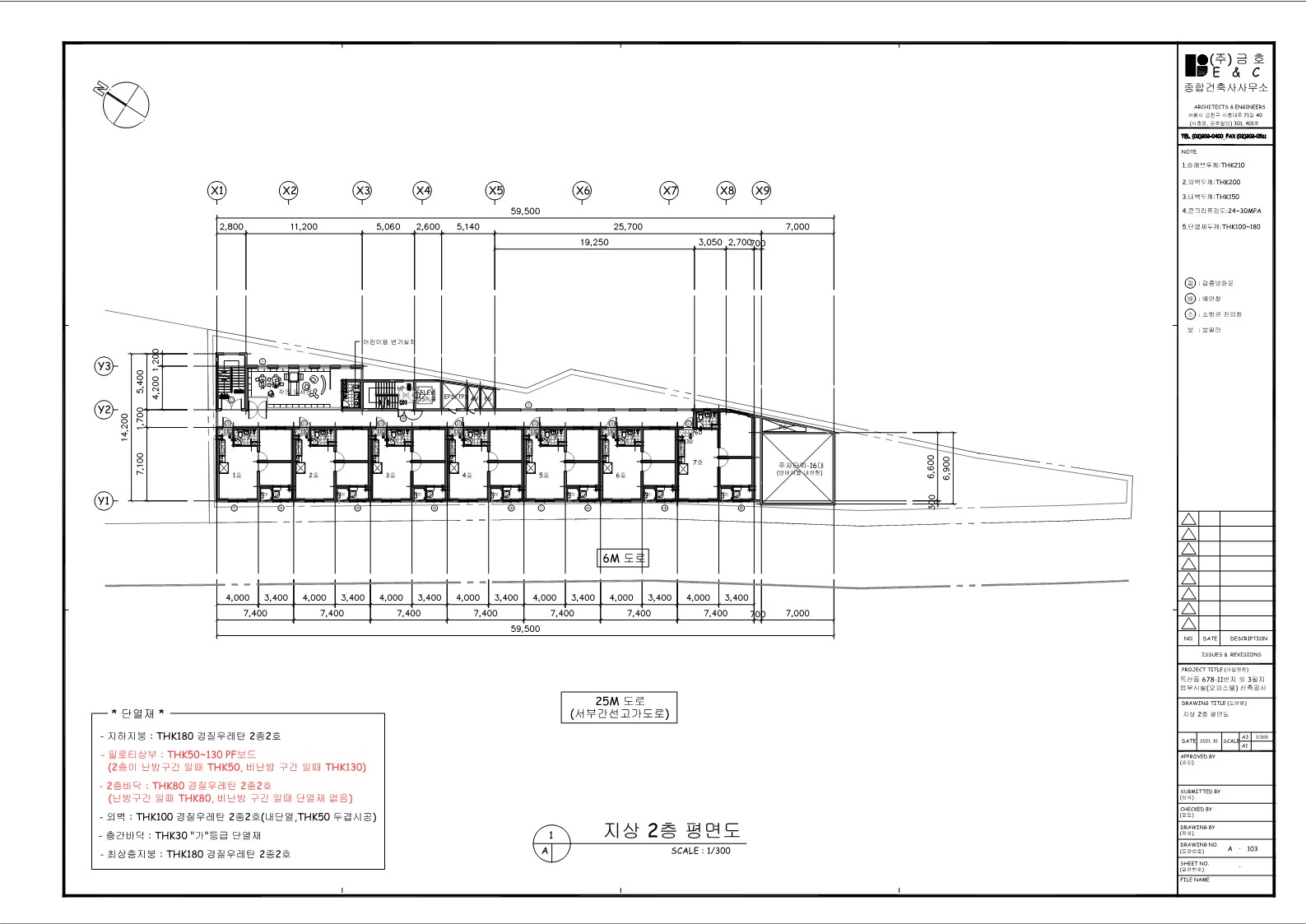
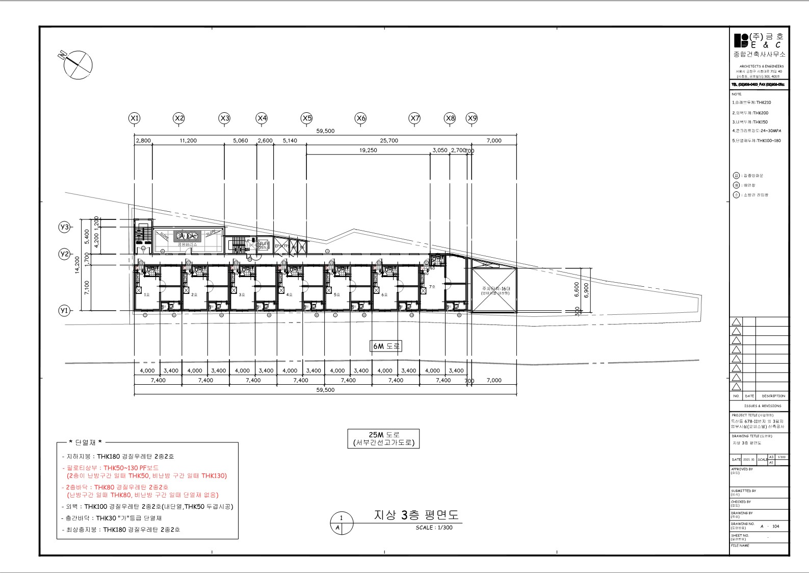
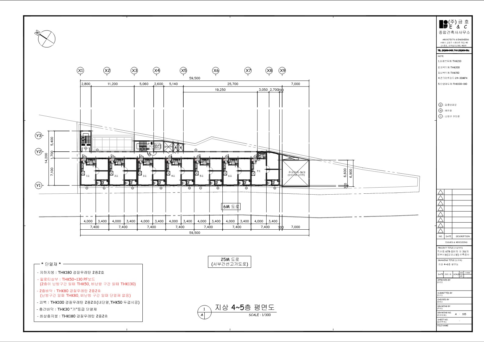
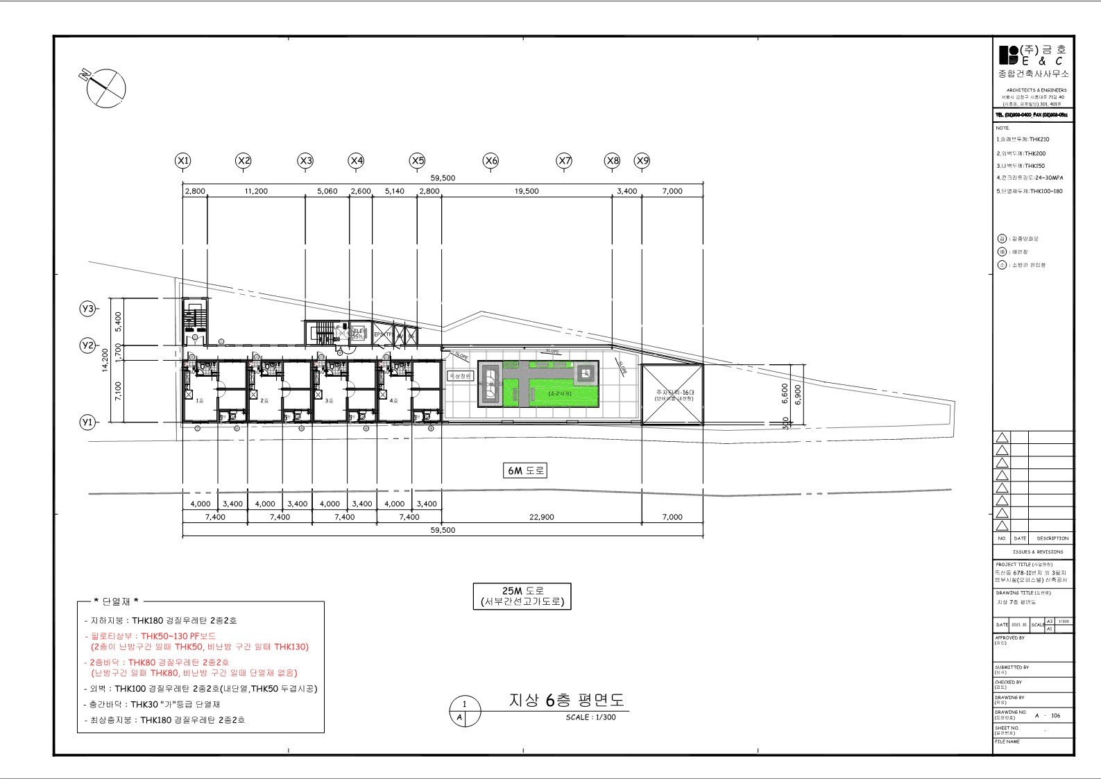
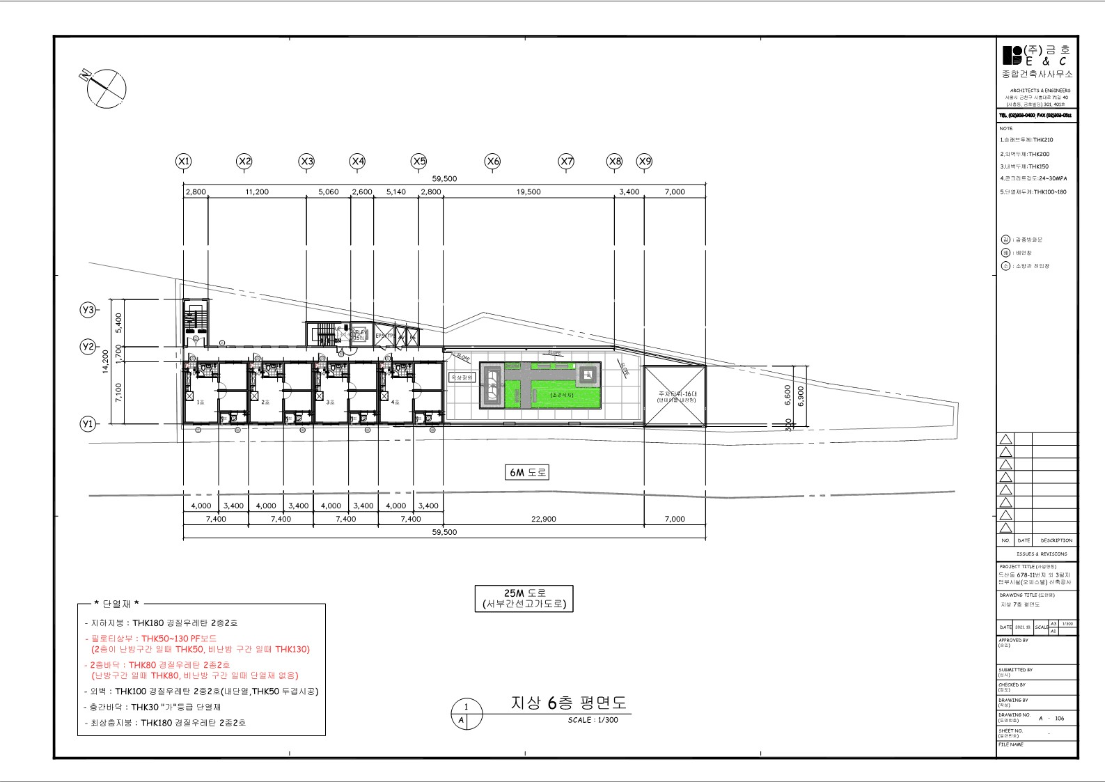
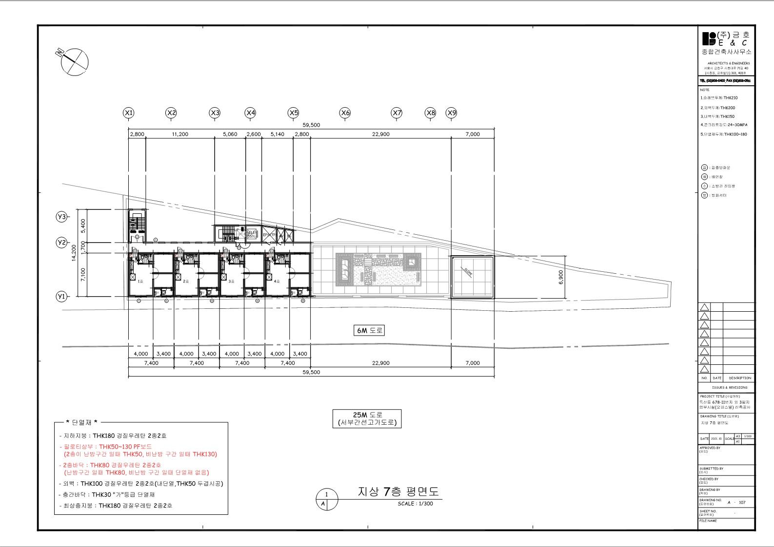
📸사진
* 서울주택정보 에서 제공된 사진을 첨부하였습니다.
서울주택정보
닫기 아파트 등,지역,지하철,학교,모집공고 검색 필터 주거안심종합센터 아파트 등,지역,지하철,학교,모집공고 검색 필터 사이버모델하우스 SH주택통계 아파트 자산현황 다가구 자산현황 원룸
www.i-sh.co.kr








💡따로 실내 사진은 없어서 아쉽지만, 평면도상 방이 2개인 구조로 층마다 구조 및 크기는 동일합니다 :)
다만, 6층의 경우 야외 정원을 쉽게 갈 수 있어서, 좀 더 이점이 있는 것 같아요! ^^
참고하시면 좋을 것 같아서 입주청소 블로그를 아래 링크로 공유드립니다 :)
독산동 계림웨스트벨리 청년임대주택 입주청소 가.. : 네이버블로그
독산동 계림웨스트벨리 청년임대주택 입주청소 가산동 가산퍼블릭 가산동 현대지식산업센터 가
안녕하세요. 클린클린입니다 오늘은 독산동에 위치한 #독산동 계림웨스트벨리 투룸 입주청소 다녀왔습니다 ...
blog.naver.com
💡주요 특징

- 준공일: 2022. 04. 12 (약 3년)
- 층수: 9층
- 세대수: 44호
- 엘리베이터 유무: 설치
- 기계식 주차 및 자주식 주차 포함 총.36대 가능하네요! :)
- 독산역에서 0.4km 떨어진 위치에 위치하고 있습니다.
오늘도 긴 글 읽어주셔서 감사합니다.
곧 다음 주택으로 돌아올게요!
'복지정보 > 2025 장기미임대 매입임대주택' 카테고리의 다른 글
| 🏠 2025년 2차 장기미임대 매입임대주택 - (21)독산헤리츠타워 알아보기! (0) | 2025.09.23 |
|---|---|
| 🏠 2025년 2차 장기미임대 매입임대주택 - (20)이스타파크 제1동 알아보기! (0) | 2025.09.16 |
| 🏠 2025년 2차 장기미임대 매입임대주택 - (18)엘아르베뉴 1동 알아보기! (0) | 2025.09.15 |
| 🏠 2025년 2차 장기미임대 매입임대주택 - (17)어스빌리지 알아보기! (0) | 2025.09.15 |
| 🏠 2025년 2차 장기미임대 매입임대주택 - (16)케이엠캐슬타운 알아보기! (0) | 2025.09.09 |