반응형

여러분 안녕하세요 :)
오늘은, 2025년 2차 장기미임대 매입임대주택 16번째 집인, 금천구 엘아르베뉴 1동을 안내드립니다 :)
참고로, 일정이 언제였지? 싶으신 분들은 아래 일정을 확인 부탁드려요!
- 주택 공개 2025.09.15.(월) ~ 09.19.(금) 현장 방문 가능
- 신청 접수 2025.09.23.(화) ~ 09.26.(금) 인터넷·우편
오늘 살펴볼 매입임대주택은, "엘아르베뉴 1동"입니다.
먼저, 대략적인 위치 보시고 가실게요 (가산동 239-4)!

네이버 지도
엘아르베뉴
map.naver.com
🏠 2025년 2차 장기미임대 매입임대 주택 입주자 모집 공고 (2025.08.28.) 주택목록 (일부 발췌)

💡가산디지털단지역에서 꽤 가까운 엘아르베뉴 1동은 총 5개의 호수가 나왔네요! 위치가 좋고, 면적이 넓은 편이다보니 가격은 다른 집들보다는 조금 있는 편이네요!
📸사진
* 서울주택정보 에서 제공된 사진을 첨부하였습니다.





204호

나머지 호수 (501, 703, 1503, 1504호)

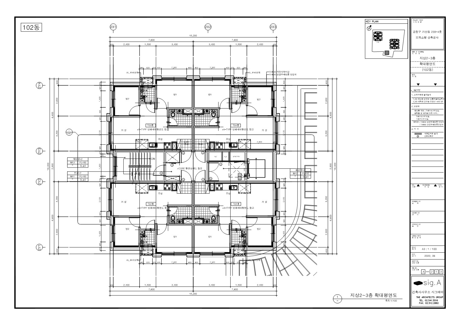
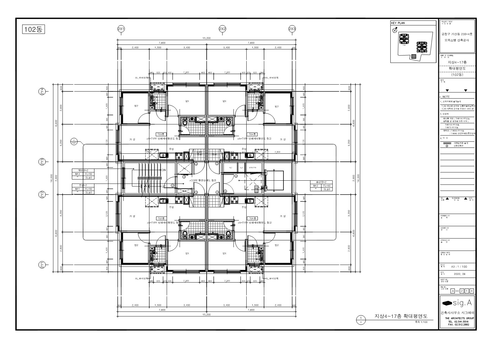
💡모든 층에 구조가 쌍둥이처럼 똑같은 구조로, 방 2개, 거실 1개, 주방으로 신혼 부부 또는 1명이서도 넉넉하게 잘 지낼 수 있을 것 같아요!
💡주요 특징

- 준공일: 2022. 01. 07 (약 3년)
- 층수: 17층
- 세대수: 65호
- 엘리베이터 유무: 설치
- 기계식 주차타워 및 지하에 주차 공간이 있습니다. 총 52대 가능하네요! :)
- 가산디지털단지역에서 0.8km 떨어진 위치에 위치하고 있습니다.
오늘도 긴 글 읽어주셔서 감사합니다.
곧 다음 주택으로 돌아올게요!
반응형
'복지정보 > 2025 장기미임대 매입임대주택' 카테고리의 다른 글
| 🏠 2025년 2차 장기미임대 매입임대주택 - (20)이스타파크 제1동 알아보기! (0) | 2025.09.16 |
|---|---|
| 🏠 2025년 2차 장기미임대 매입임대주택 - (19)계림웨스트벨리 알아보기! (0) | 2025.09.15 |
| 🏠 2025년 2차 장기미임대 매입임대주택 - (17)어스빌리지 알아보기! (0) | 2025.09.15 |
| 🏠 2025년 2차 장기미임대 매입임대주택 - (16)케이엠캐슬타운 알아보기! (0) | 2025.09.09 |
| 🏠 2025년 2차 장기미임대 매입임대주택 - (15)서도휴파크 알아보기! (0) | 2025.09.09 |