반응형

여러분 안녕하세요 :)
오늘은, 2025년 2차 장기미임대 매입임대주택 8번째 집인, 서초구 한별을 안내드립니다 :)
참고로, 일정이 언제였지? 싶으신 분들은 아래 일정을 확인 부탁드려요!
- 주택 공개 2025.09.15.(월) ~ 09.19.(금) 현장 방문 가능
- 신청 접수 2025.09.23.(화) ~ 09.26.(금) 인터넷·우편
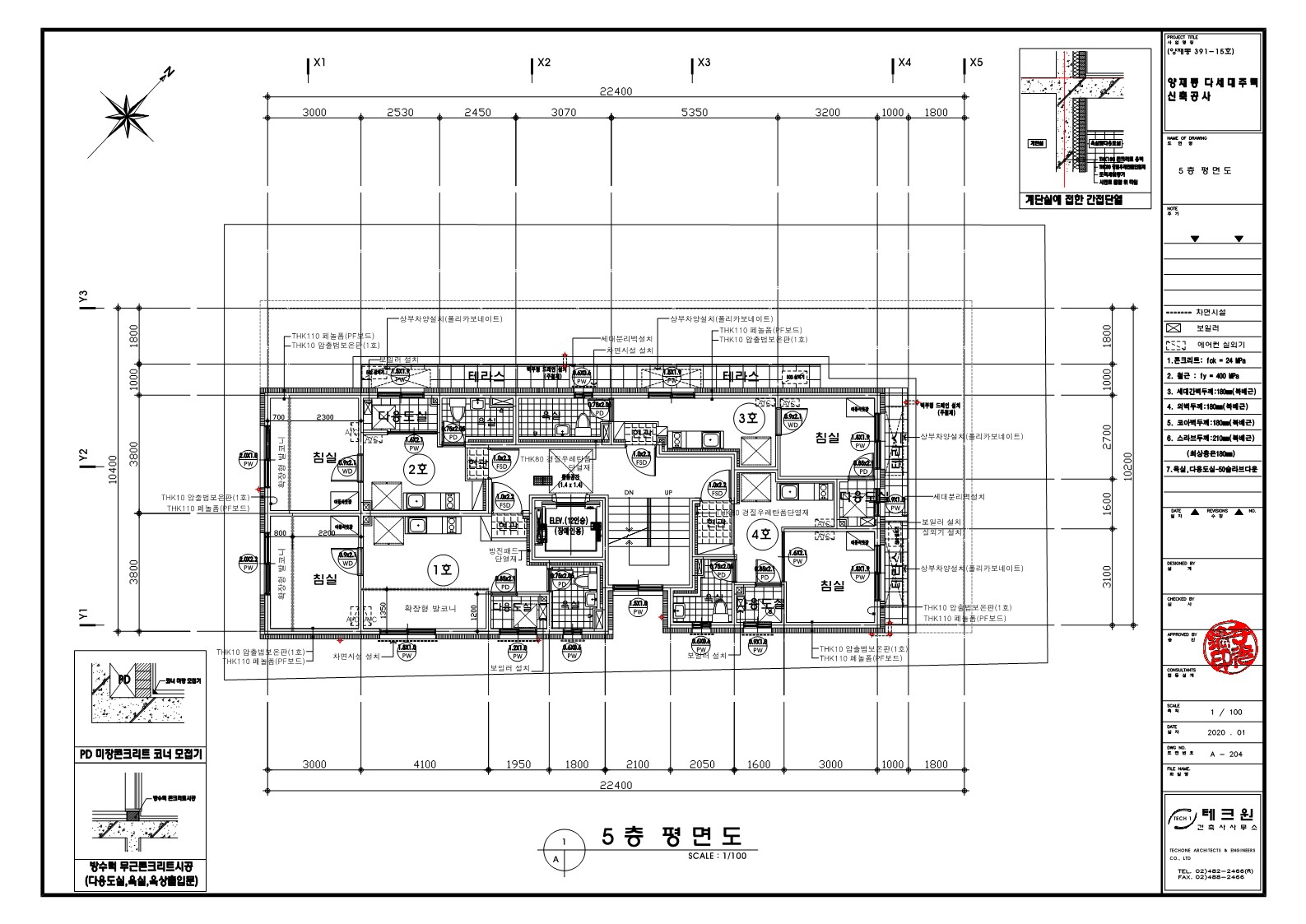
오늘 살펴볼 매입임대주택은, "한별"입니다.
먼저, 대략적인 위치 보시고 가실게요 (양재동 391-15)!

🏠 2025년 2차 장기미임대 매입임대 주택 입주자 모집 공고 (2025.08.28.) 주택목록 (일부 발췌)

📸사진
* 서울주택정보 에서 제공된 사진을 첨부하였습니다.









💡주요 특징

- 준공일: 2020. 11. 30
- 층수: 5층
- 세대수: 20호
- 엘리베이터 유무: 설치
- 기계식 주차장은 없으나, 1층에 주차 공간이 있습니다. 10대 가능하네요! :)
- 양재시민의숲역에서 900m 이내에 위치하고 있습니다.
공급 호수는 203, 502호 2개인데요, 현재 업로드된 사진 및 평면도상 분리형 원룸 구조로 넓게 나온 것 같습니다. 참고해주세요 ^^
오늘도 긴 글 읽어주셔서 감사합니다.
곧 다음 주택으로 돌아올게요!
반응형
'복지정보 > 2025 장기미임대 매입임대주택' 카테고리의 다른 글
| 🏠 2025년 2차 장기미임대 매입임대주택 - (10)다이얼로그663 알아보기! (사진포함) (0) | 2025.09.07 |
|---|---|
| 🏠 2025년 2차 장기미임대 매입임대주택 - (9)다원하이빌 알아보기! (사진포함) (0) | 2025.09.06 |
| 🏠 2025년 2차 장기미임대 매입임대주택 - (7)광채빌라 알아보기! (사진포함) (0) | 2025.09.06 |
| 🏠 2025년 2차 장기미임대 매입임대주택 - (6)더존에이스빌 알아보기! (사진포함) (0) | 2025.09.06 |
| 🏠 2025년 2차 장기미임대 매입임대주택 - (5)원앙에이스빌 알아보기! (사진포함) (0) | 2025.09.06 |