반응형

여러분 안녕하세요 :)
오늘은, 2025년 2차 장기미임대 매입임대주택 2번째 집인, 송파구 현도빌을 안내드립니다 :)
참고로, 일정이 언제였지? 싶으신 분들은 아래 일정을 확인 부탁드려요!
- 주택 공개 2025.09.15.(월) ~ 09.19.(금) 현장 방문 가능
- 신청 접수 2025.09.23.(화) ~ 09.26.(금) 인터넷·우편
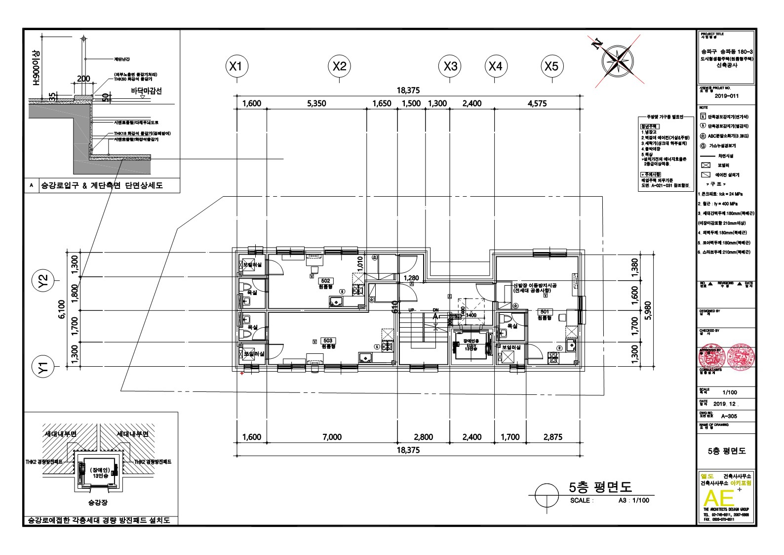
오늘 살펴볼 매입임대주택은, "현도빌"입니다.
먼저, 대략적인 위치 보시고 가실게요 (송파동 180-3)!

🏠 2025년 2차 장기미임대 매입임대 주택 입주자 모집 공고 (2025.08.28.) 주택목록 (일부발췌)

📸사진
* 서울주택정보 에서 제공된 사진을 첨부하였습니다.





💡주요 특징

- 준공일: 2020.12.23
- 층수: 5층
- 세대수: 14호
- 엘리베이터 유무: 설치
- 난방 방식: 개별난방
- 기계식 주차장은 없으나, 1층에 주차 공간이 있습니다.
- 송파역 300m 이내에 위치하고 있습니다.
공급 호수는 502호 1개인데요, 5층인데 엘리베이터가 다행히 설치되어있네요! :)
다음 주택도 곧 포스팅하러 오겠습니다 ^^
반응형
'복지정보 > 2025 장기미임대 매입임대주택' 카테고리의 다른 글
| 🏠 2025년 2차 장기미임대 매입임대주택 - (5)원앙에이스빌 알아보기! (사진포함) (0) | 2025.09.06 |
|---|---|
| 🏠 2025년 2차 장기미임대 매입임대주택 - (4)세종빌라 알아보기! (사진포함) (0) | 2025.09.06 |
| 🏠 2025년 2차 장기미임대 매입임대주택 - (3)잠실모리스빌 알아보기! (사진포함) (0) | 2025.09.06 |
| 🏠 2025년 2차 장기미임대 매입임대주택 - (1)석촌파크빌 III 알아보기! (사진포함) (2) | 2025.09.06 |
| 🏠 2025년 2차 장기미임대 매입임대주택 모집 안내 (소득 대폭 완화!) (0) | 2025.09.06 |