
여러분 안녕하세요 :)
오늘은, 2025년 2차 청년 매입임대주택 '강동구'에 신규 공급이 된 총 4개 주택을 안내드립니다 :)
집을 고르는 사람의 입장에서 위치, 내부 공간을 저는 가장 많이 보게 되는 것 같아요!
그 관점에서 포스팅 진행해보려고 합니다 ^^ 사진 많이 올렸으니 궁금하신 공간들 잘 찾아서 투어해보세요!
참고로, 일정이 언제였지? 싶으신 분들은 아래 일정을 확인 부탁드려요!
- 신청 접수 2026.01.12.(월) ~ 01.14.(수) 17:00
- 서류심사대상자 발표: 2026. 1. 16 (금) 17:00 에정
- 서류심사대상자 입주자격 심사 : ~ 2025. 5월
- 당첨자 및 예비자 발표 : 2026. 5. 22.(금) 17:00 예정
- 당첨자 계약 : 2026. 6. 9.(화) ~ 6. 12.(금)
- 입주기간 : 2026. 6. 29.(월) ~ 2026. 8. 27.(목)
오늘 살펴볼 매입임대주택은, 요즘 살기좋다고 소문난 강동구의 집이며, 신규 521호 중 총 51호입니다 ☺️
1. 신우드림빌[천호동] (강동구 상암로35길 10, 천호동 38-8): 14호
2. 초행지붕 천호 (강동구 상암로41길 75-11, 천호동 27-18): 1호
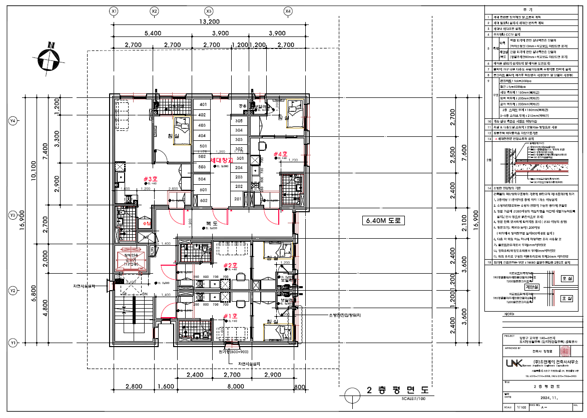
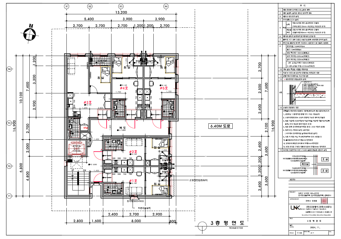
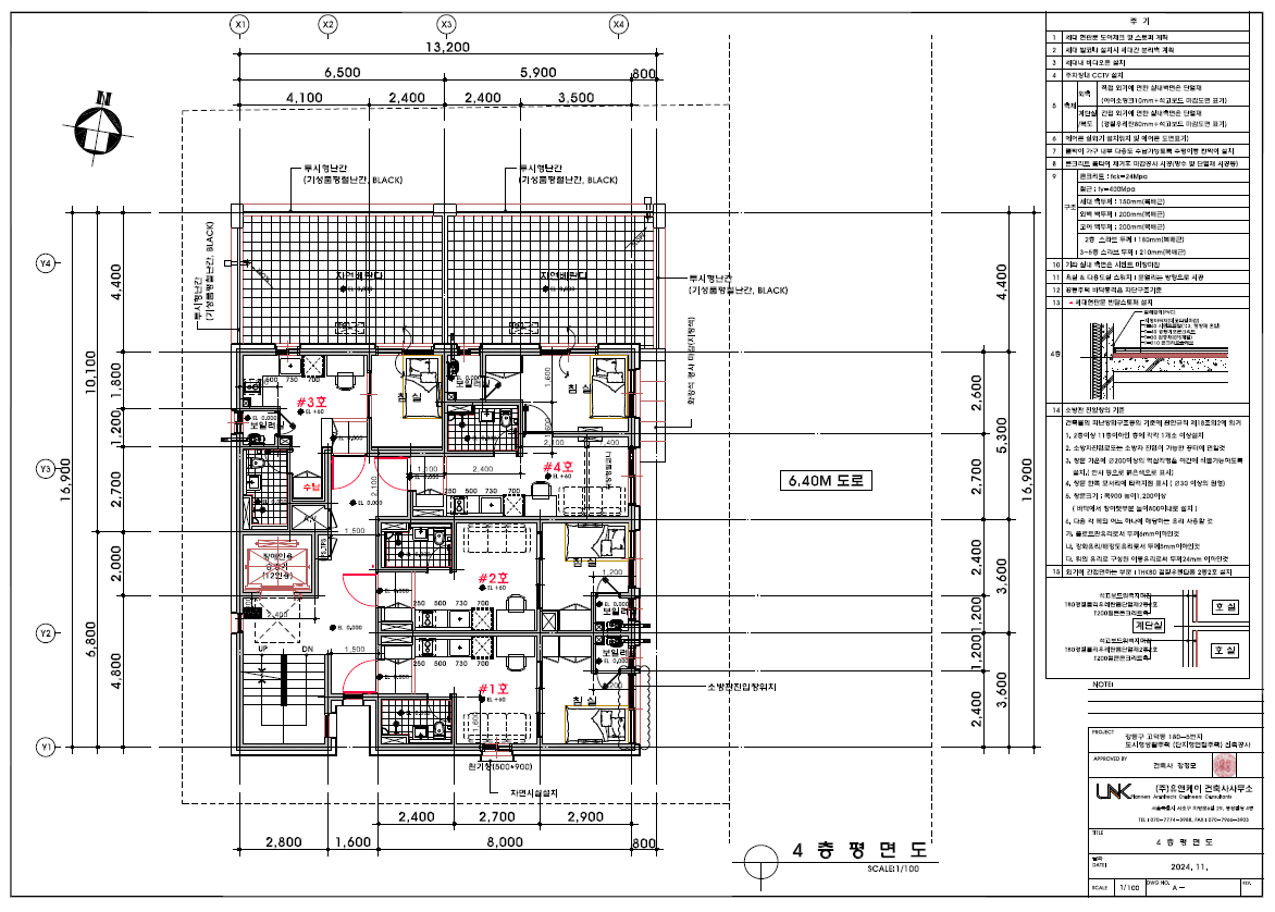
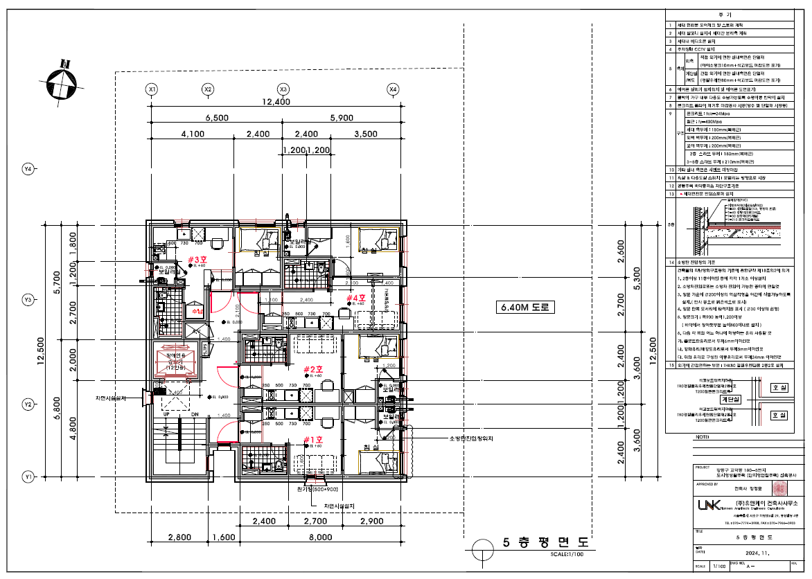
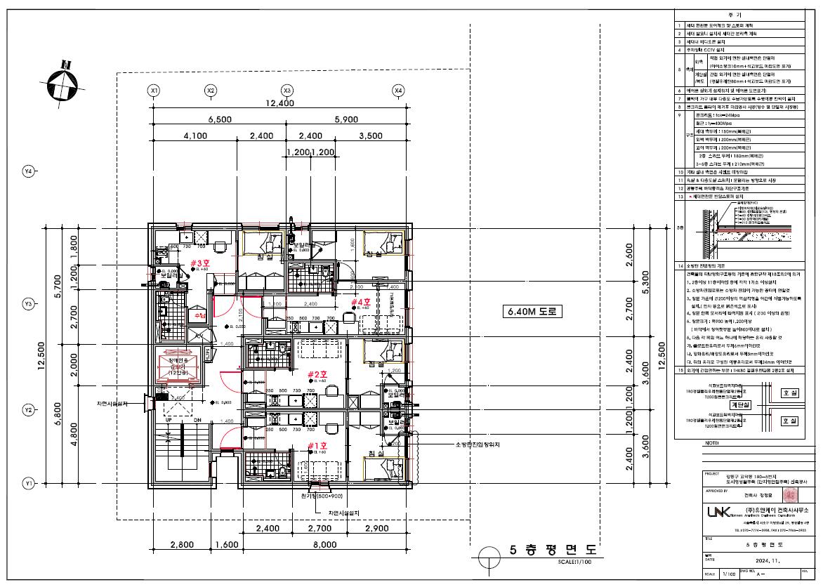
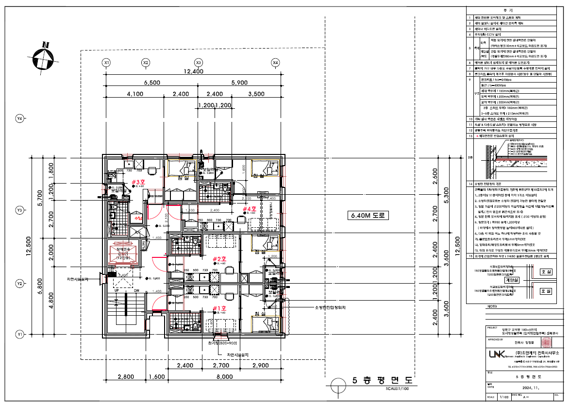
3. 신우드림빌[고덕동] (강동구 상일로23길 7-16, 고덕동 180-5): 19호
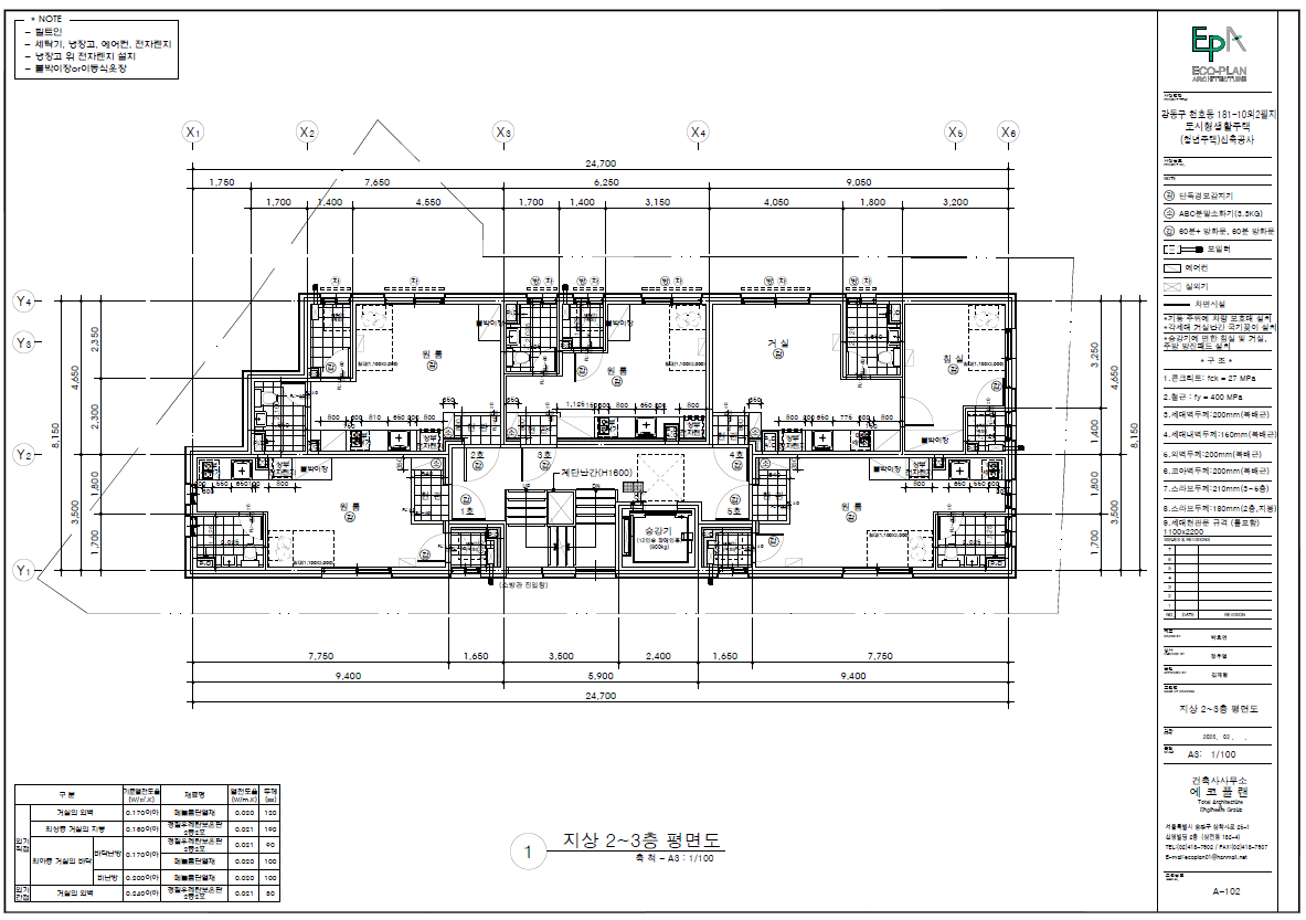
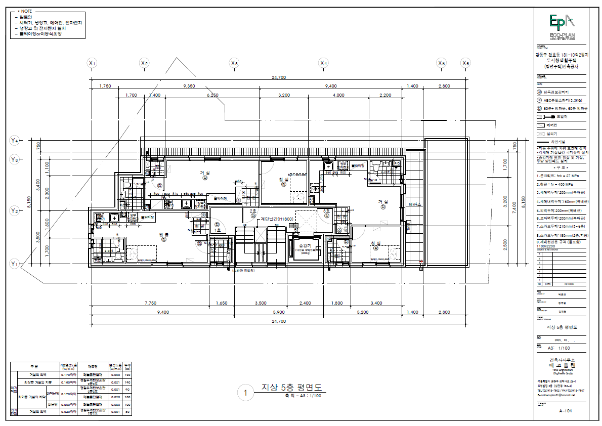
4. 희망 (강동구 진황도로33길 45, 천호동 181-10): 17호

🏠 신우드림빌[천호동]: 14호
1. 위치
강동구 상암로35길 10, 천호동 38-8
네이버지도
서울특별시 강동구 상암로35길 10
map.naver.com

- 굽은다리역에서 약 500m, 도부 7분 거리에 있고, 천호중학교 바로 옆에 있는 집입니다!
- 근처에 천호삼거리 공원, 아파트들이 있고, 역 바로 앞에는 홈플러스도 있습니다.
2. 세부 주택목록 (주택형, 보증금 및 임대료 포함)

- 주택형 43A: 201-202, 301-302, 401-403, 501-503
- 주택형 29B: 203-204, 303-304
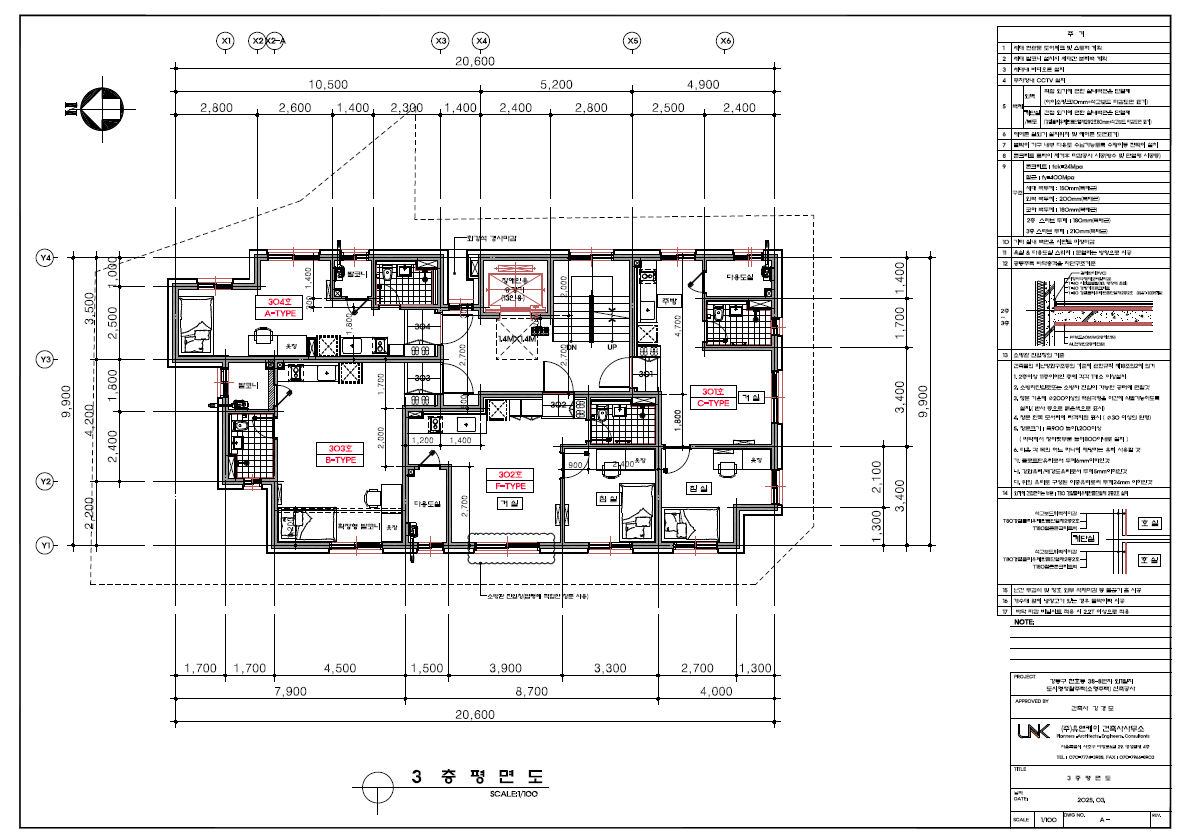
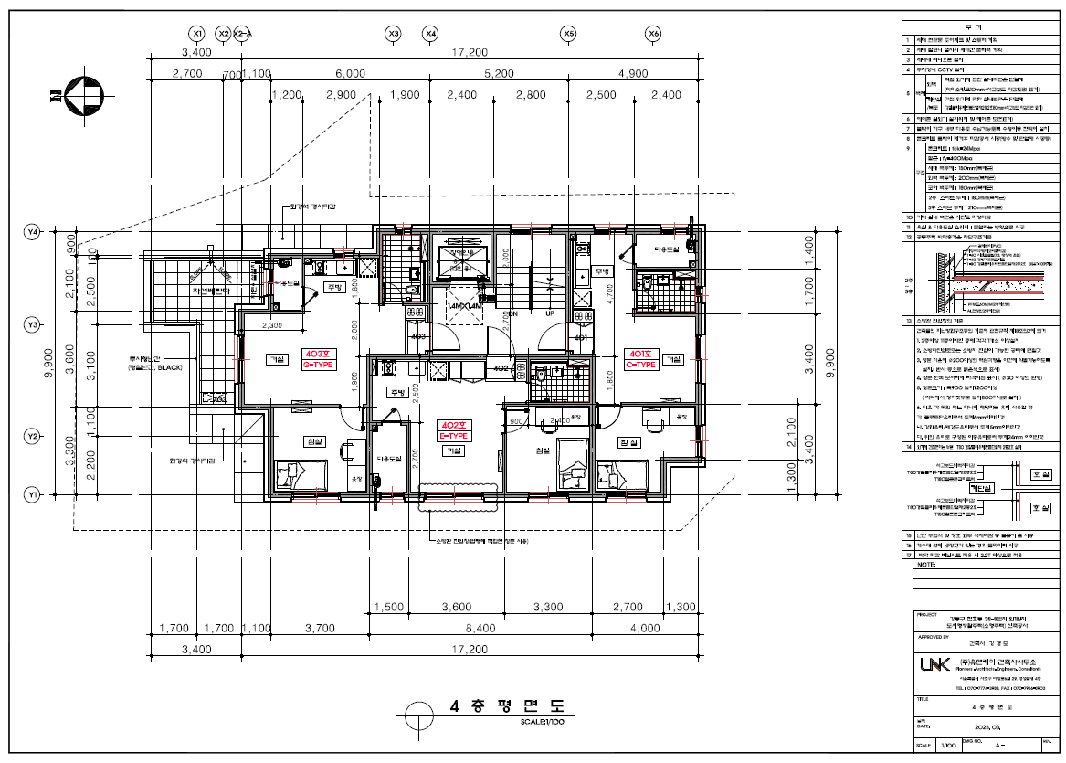
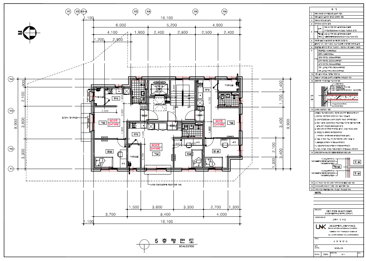
3. 도면 (평면도, 1-5층)





4. 사진 (전경 및 건물 내부)
















🏠 초행지붕 천호: 1호
1. 위치
강동구 상암로41길 75-11, 천호동 27-18
네이버지도 - 주소
서울특별시 강동구 상암로41길 75-11
map.naver.com

- 명일역에서 약 500m, 도보 7분입니다.
- 성덕여중, 성덕고등학교가 바로 앞에 있고, 주변에 아파트들이 있네요!
- 명일역 앞에는 명리단길과 건너편에 명일전통시장이 있어서 삶의 질은 상당히 높을 것 같습니다 ^^
2. 세부 주택목록 (주택형, 보증금 및 임대료 포함)

- 초행지붕 천호는 1호, 401호만 공급이 되었고, 29B입니다.
3. 도면 (평면도, 1-5층) / 4. 사진 (전경 및 건물 내부)
- 초행지붕 천호는 구글링, SH공사에서 제공되는 사진이 한장도 없어서 공유가 어렵네요 ㅠㅠ 도움을 드리지 못한 점 양해 부탁드립니다.
🏠 신우드림빌[고덕동]
1. 위치
강동구상일로23길7-16, 고덕동180-5
네이버지도
신우드림빌
map.naver.com



- 상일동역과 강일역 사이에 위치한 주택으로, 각각 도보 7분, 11분입니다.
- 지도에서 보실 수 있는 것처럼 푸릇푸릇 자연이 정말 많네요, 자연을 좋아하시는 분들은 여기 집중해주세요!
2. 세부 주택목록 (주택형, 보증금 및 임대료 포함)

- 28A: 201, 202, 204, 301, 302, 304, 305, 401-403, 501-503
- 33A: 404, 504
- 45A: 203, 303, 601-602
3. 도면 (평면도, 2-5층)




4. 사진 (전경 및 건물 내부)




















- SH공사에서 제공하는 각 호수별 내부 구조사진을 가져와봤습니다.
- 전체적으로 채광도 괜찮아 보이고, 깔끔한 상태 같아 보입니다.
🏠 희망 - 17호
1. 위치
강동구진황도로33길45, 천호동181-10
네이버지도
서울특별시 강동구 진황도로33길 45
map.naver.com


- 강동역에서 6분, 길동역에서 8분 거리에 있는 주택입니다.
- 강동성심병원이라는 대형병원이 근처에 있네요!
2. 세부 주택목록 (주택형, 보증금 및 임대료 포함)

- 26B: 203, 303, 402-403
- 29B: 201-202, 205, 301-302, 305, 401, 501
- 37A: 502, 503
- 40A: 204, 304, 404
3. 도면 (평면도, 2-5층)



4. 사진 (전경 및 건물 내부)











오늘 강동구에 새로 공급된 총 4개의 집을 살펴보았습니다.
초행지붕 천호를 자세히 소개드리지 못해 아쉬움이 큰데요.
SH공사에서 공개된 정보를 들어가보려면 다소 품이 많이 들어서 여러분이 보시기 쉽게 열심히 준비해봤는데,
많은 청년분들에게 도움이 되고, 이 글을 보시는 많은 분들께서 당첨되셔서 안락한 주거생활을 하시길 기원하겠습니다.
모든 청년분들 화이팅입니다!
감사합니다.